板橋区中台1丁目店舗付住宅
| 物件名 | 板橋区中台1丁目店舗付住宅 |
| 路線/駅名 | 東武東上線「上板橋」駅 徒歩4分 |
| 所在地 | 東京都板橋区中台1-36-6 |
| 販売価格 | 18,800,000円 |
| 管理費 | 円 |
| 積立金 | 円 |
| 土地面積 | 27.69㎡(セットバック面積0.59㎡含)※他道路持分有 |
| 土地権利 | 所有権 |
| 地目 | 宅地 |
| 建物構造・規模 | 木造亜鉛メッキ鋼板葺2階建 |
| 建物面積 | 39.66㎡( 約 12坪) |
| バルコニー | ㎡ |
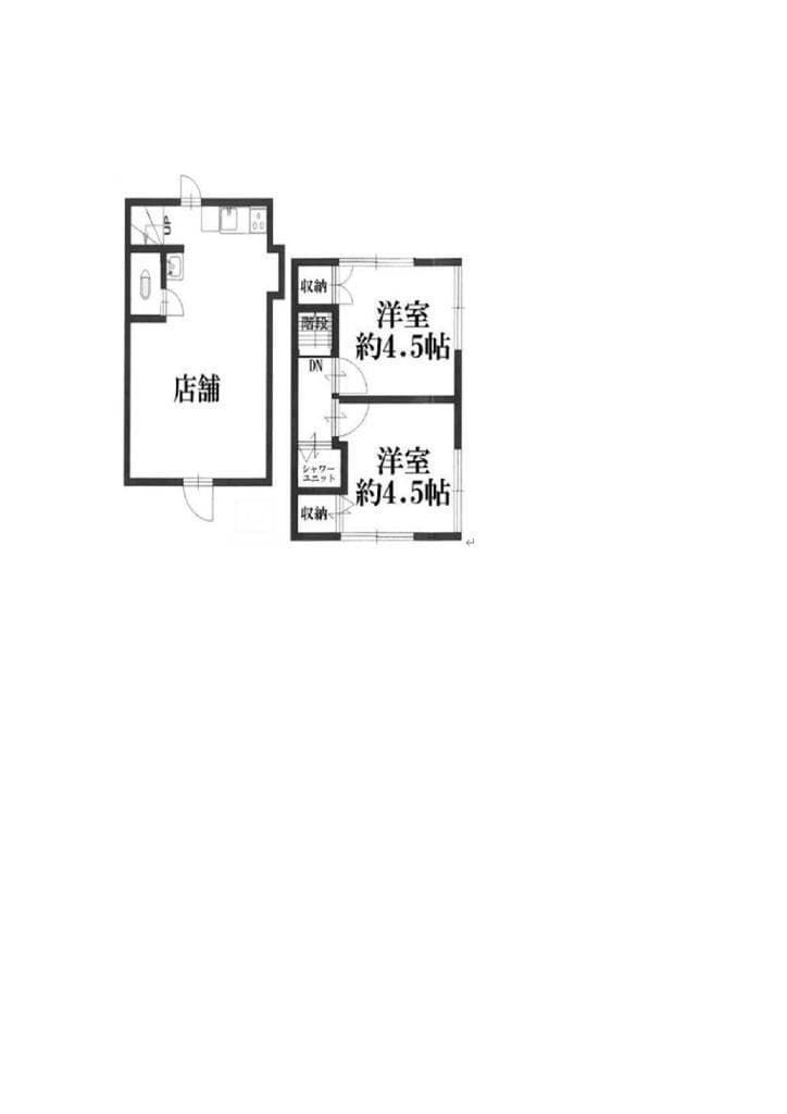
| 間取り | 店舗+2部屋 |
| 都市計画 | |
| 用途地域 | 近隣商業地域 |
| 建蔽率 | 80% |
| 容積率 | 300% |
| その他の制限 | |
| 築年数 | 1973年(昭和 48年) 6月 |
| 総戸数 | 1戸 |
| 駐車場 | 無 |
| 現況 | 空室 |
| 引渡日 | 相談 |
| 接道状況 | 42条2項道路 |
| 管理形態 | |
| 管理会社 | |
| 分譲会社 | |
| 施工会社 | |
| ガス | 都市ガス |
| 設備 | 本下水 |
| その他 |