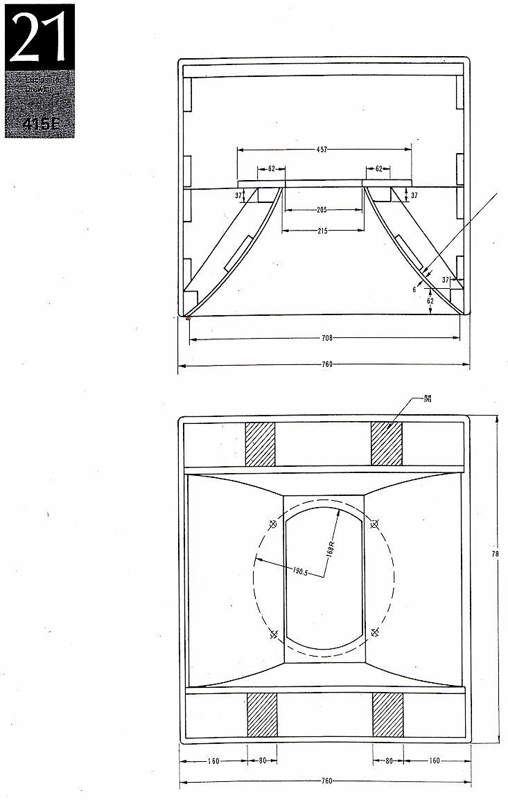
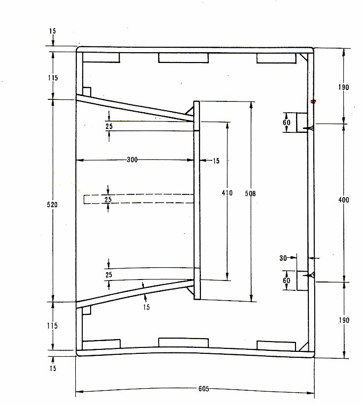
ALTEC LANSING
Enclosure Drawings