所員全員で設計条件についてディスカッションをしました。
そしてそれぞれ案を持ち寄り、クライントの生活にもっとも適しているであろう案を採用しました。
以下は本コンペに際し、所員達が作成したエスキース(フランス語で、スケッチや下絵のこと)です。
クリックすると大きくなりますので、宜しければご覧下さい。
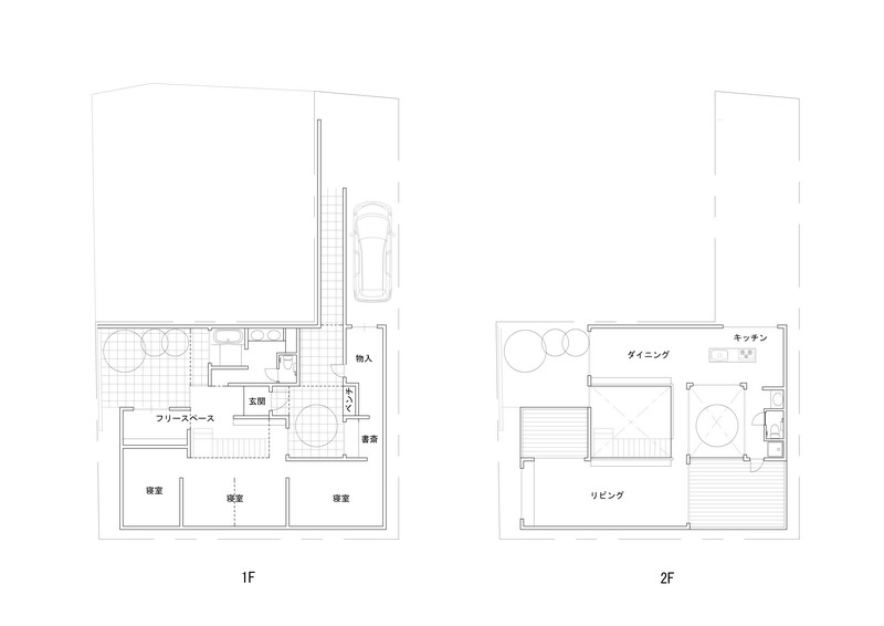
以下は今回採用した案です。





印刷用表示 |テキストサイズ 小 |中 |大 |
updated 2010-08-31

所員全員で設計条件についてディスカッションをしました。
そしてそれぞれ案を持ち寄り、クライントの生活にもっとも適しているであろう案を採用しました。
以下は本コンペに際し、所員達が作成したエスキース(フランス語で、スケッチや下絵のこと)です。
クリックすると大きくなりますので、宜しければご覧下さい。
以下は今回採用した案です。




